top of page
als
NASLOVNA
USLUGE
KONTAKT
O NAMA
PROJEKTI
Realizirano
Nerealizirano
Javna, društvena, turist. i dr. namjena
Natječaji
Interijeri
Produkt dizajn
More
Use tab to navigate through the menu items.
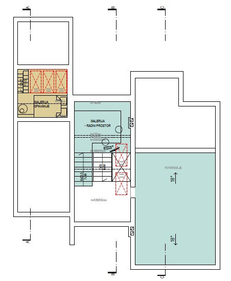
Kuća CIH
Lokacija: Valbandon
Tip projekta: rekonstrukcija obiteljske kuće
Previous
Next
bottom of page